Home > 住まいの写真集 > 練馬の家

No.5

"練馬の家"


2002.11.18 公開
2005.07.07 改訂
2005.07.14 改訂
2009.09.23 改訂
2016.11 改訂


印象的な洋風階段と大理石の床


私が初めてお客様とお会いしたのは、今から3年前(*1)のことでした。

その時以来、家のプランをおそらく10回以上作っておりますが、お客様の奥様は、某有名建築事務所(アーネストホーム)との設計契約をすでに結ばれており、私は相手にされませんでした。

某営業マンの方針とプラン作りが好きなこともあり、現実化するかわからないまま、それでも楽しくプランを作ってはご主人様とお話しをしておりました。

お会いしてから約2年がが経った頃、その営業マンからすぐ新しいプランを作ってくれないかと連絡が入りました。奥様と某有名建築事務所が決裂したらしいのです。

営業マンとは、「ドン・ジョンソン(*2)が住むような家を作ろう!」と盛り上がり、慌ててプランをまとめお打ち合わせに望みましたが、その頃からキーマンである奥様とお会いできるようになりました。

しかし、奥様は鼻にも掛けてくれず、お打ち合わせも30分もさせてくれません。しまいには、別なデザイナーを呼んで欲しいと罵られます。

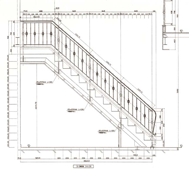
そんな状況の下、転機となったのが1枚の階段手摺のスケッチです。

わずかなお話ししか聞いておりませんでしたが、どのようなスタイルを望まれているかが解ってきていました。

その1枚がこの「練馬の家」を現実のものにすることとなったのです。

(*1)文章は、2002年公開したものを引用
(*2)アメリカの男優(刑事TVドラマ「マイアミバイス」は有名)


(建築Memo)
Title: 練馬の家
建築地: 東京都練馬区中村
用途地域: 第一種低層住居専用地域
第一種中高層住居専用地域
敷地面積: 293.16㎡ (88.5坪)
建物面積: 建築面積:159.37㎡

延床面積:247.02㎡ (74.8坪) 

1F:148.40㎡
2F:98.62㎡
総工費: 約1億円
竣工: 平成14年5月
家族構成: 夫婦(40歳台)
子ども(女の子2人、小学生低学年)


階段詳細図、及び、デザイン
top2 top3 top4


写真
001 002 003 004 005 006 007 008 009 010 011 012 013 014 015 016 017 018 019 020 021 022 023 024 025 026 027 028 029 030 031 032 033 034 035 036 037 038 039 040 041 042 043 044 045 046 047 048 049 050 051 052 053 054 055


住まいの実例集でも「練馬の家」をご紹介しています。
間取りなどご覧になれます。

住まいの実例集 <練馬の家>



住まいの写真集

Top

Home



Total Visitor


Deens House Advice | Deens Japan House | Deens Group

© 2002 Deens Group